
Cette maison a été entretenue, rénovée et restaurée avec un soin particulier.
Pure beauté artisanale, conçue pour inspirer le confort et le partage!
Cette propriété de La Haute-Saint-Charles incarne l’allure et l’âme d’un relooking minutieux. Pensée et dessinée lors de sa restauration par les propriétaires actuels, elle a été assemblée à la main par des artisans spécialisés reconnus, puis dorlotée dans son rendu final pour devenir un produit véritablement unique.
Pierre-Olivier Vear et Alexandre Dubois de Re/Max 1er Choix sont les courtiers responsables de la vente de cette beauté ancestrale de 1880 à vendre pour 424 900 $.
Bonne visite.

Cette maison a été entretenue, rénovée et restaurée avec un soin particulier.

La première chose qui frappe, ce sont les boiseries, les poutres apparentes et les autres planches qui semblent dater de la construction et renforcent le charme de la propriété. Notre regard se porte ensuite sur une cuisine au style classique, dotée d’un plan de travail ergonomique et d’un charmant îlot central pouvant accueillir quatre personnes.



N’est-ce pas une belle grande cuisine? La pièce s’ouvre ensuite sur une salle à manger qui invite à des repas conviviaux.

La lumière pénètre gracieusement à travers les larges fenêtres, inondant les espaces et accentuant le caractère chaleureux de la demeure.


C’est de l’autre coté de la salle à manger que se trouve l’espace salon. Que dire des superbes planchers de bois?


L’espace pour la buanderie se trouve adjacent au salon en plus d’y retrouver un grand garde-robe.


L’unique salle de bain de la résidence propose un concept contemporain avec une baignoire/douche.

Les professionnels qui travaillent à domicile apprécieront cette pièce, parfaitement adaptée à ce besoin. D’une belle superficie, elle peut également servir à d’autres usages.


Le plan du rez-de-chaussée nous aide à mieux comprendre la disposition des pièces.

La suite principale invite à une nuit réparatrice dans une chambre au superbe plafond cathédrale, sublimé par des ouvertures lumineuses; un véritable cocon douillet.



La salle d’eau du palier offre une commodité très appréciée.

Cette maison de 1880 possède une deuxième chambre à coucher toute aussi belle avec une grande penderie en prime.


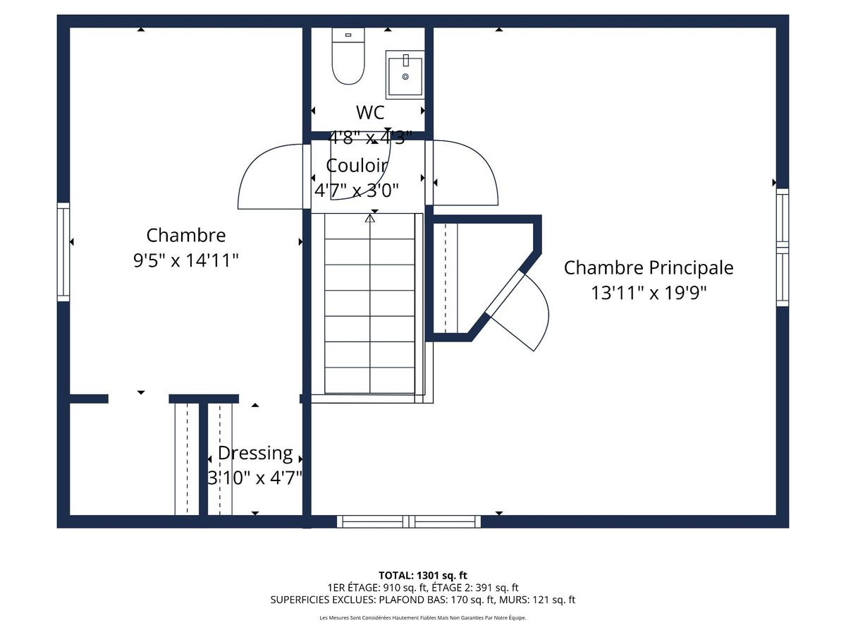
Le plan du deuxième étage.

Cette beauté ancestrale repose sur un terrain de 8 891 pieds carrés avec une grande terrasse et une remise.


N’hésitez pas à consulter la fiche de vente de cette charmante résidence de Québec (La Haute-Saint-Charles) pour connaître plus de détails sur celle-ci!

Recevez les dernières nouvelles directement dans votre boîte de réception.