
Avec une piscine en prime.
Cette charmante propriété, entretenue avec le plus grand soin, donne immédiatement le ton d’un vrai coup de cœur.
Avec ses trois chambres bien agencées, elle s’adresse tout particulièrement à une vie familiale confortable et fonctionnelle.
Pierre-Olivier Vear, Florence Capano et Philippe Couture (Re/Max 1er Choix) sont les courtiers responsables de la vente de cette coquette propriété de Charlesbourg de 379 000 $. Entrez voir!

Le premier coup d’œil révèle une aire ouverte lumineuse sur deux paliers.

Passez un moment de détente au salon qui se trouve immédiatement à droite de l’entrée. La pièce possède une grande fenêtre laissant la lumière naturelle inonder la pièce.


Le coup d’œil sur le restant de l’aire ouverte dévoile la salle à manger et la cuisine.

La salle à manger et la cuisine prennent place sur un palier légèrement surélevé, dans une disposition qui favorise la convivialité. Cet agencement permet de préparer le repas tout en poursuivant facilement la conversation avec les personnes installées à table.


Vous avez sans doute, déjà repéré le mur de rangements qui traverse cette cuisine ergonomique, un atout pratique qui fait toujours l’unanimité dans une cuisine fonctionnelle.


Cette charmante propriété de 379 000 $ possède deux chambres au rez-de-chaussée, dont cette chambre principale dotée d’une belle grande fenêtre en trois sections.


L’unique salle de bain se trouve aussi au rez-de-chaussée de la maison. La pièce dispose d’une baignoire/douche toujours pratique pour répondre aux préférences des membres de la famille.


La seconde chambre du rez-de-chaussée, tout aussi charmante, se distingue par ses murs vert pomme qui apportent une touche vive et chaleureuse.

Le sous-sol, généreux et polyvalent, constitue un véritable atout pour accueillir une famille qui grandit, aménager des espaces de divertissement ou optimiser le rangement selon les besoins.


On retrouve une troisième chambre au dimensions généreuses de 12’ 4’’ par 14’ 3’’ au sous-sol de la propriété.


Que ce soit pour effectuer des petits travaux ou bricoler, cet atelier sera fort utile!

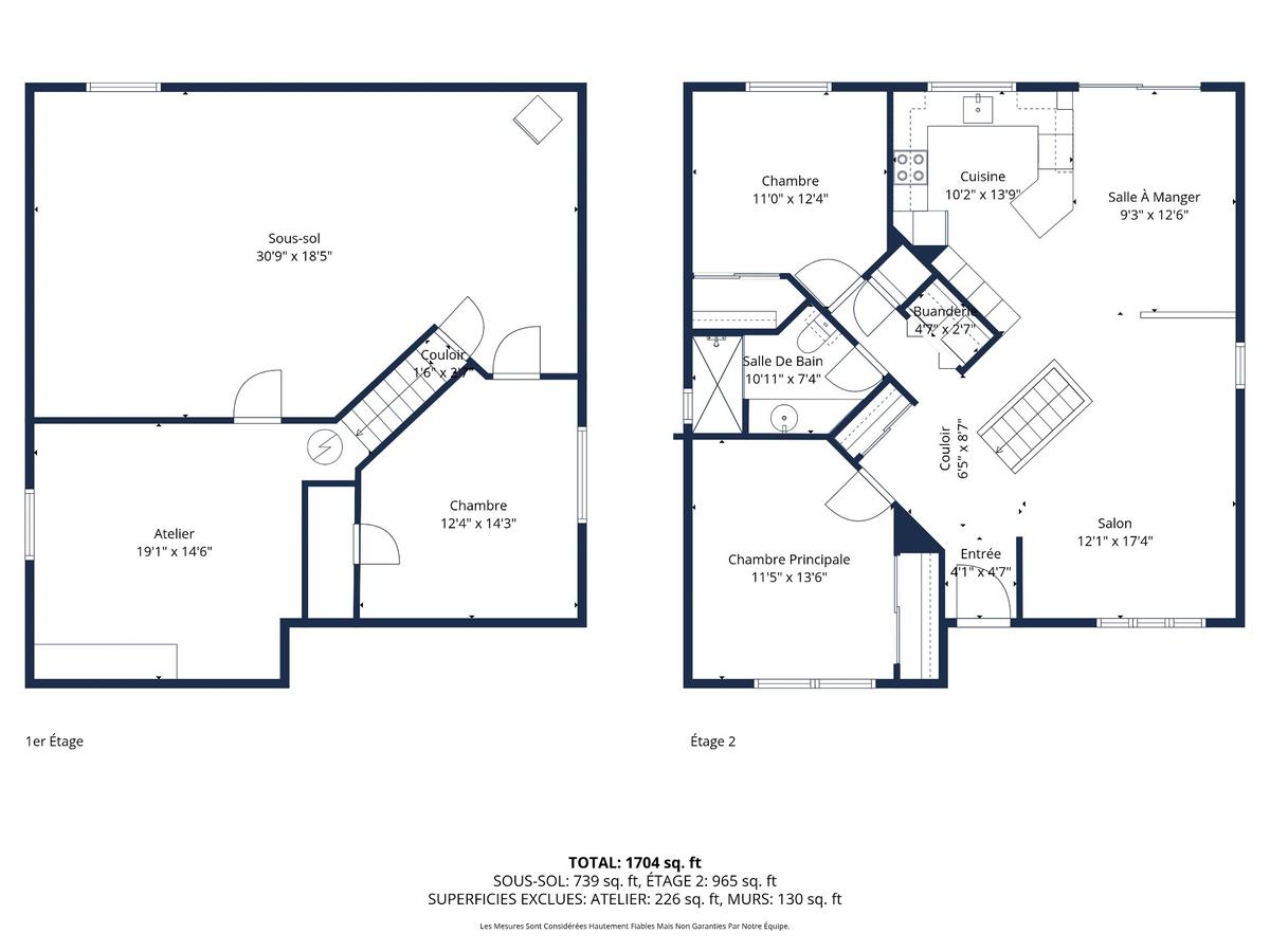
Les plans des étages de la propriété, nous permettent de se faire une meilleures idée de la disposition des pièces.

La cour arrière invite à la détente et aux moments privilégiés en famille, propice aux jeux en plein air et aux après-midis lumineux. La piscine est aussi incluse dans la vente!


Profitez du terrain d’un peu plus de 5 600 pieds carrés et rangez les accessoires de la piscine et meubles de patio dans l’un des cabanons de la propriété!

Chaque pièce respire la chaleur et le confort d’un foyer aimant, prêt à devenir le vôtre.
La possibilité d’emménager rapidement représente un avantage appréciable, permettant une installation sans attente et en toute sérénité.
Cette maison est idéale pour ceux qui recherchent un cadre accueillant et pratique.
Une visite vous convaincra et vous laissera apprécier les possibilités de cette charmante propriété de Charlesbourg.


Recevez les dernières nouvelles directement dans votre boîte de réception.
À propos de l'auteur
Rédactrice
Bachelière en musique, Martine enseigne la musique et compose des pièces musicales pendant ses temps libres. Passionnée d’architecture et d’aménagement intérieur, elle suit de très près le marché immobilier du Québec pour vous présenter de magnifiques propriétés à vendre.
Lire la suite