
Un intérieur chaleureux de 3 chambres à coucher vous attend!
Cette propriété clés en main, située dans un secteur paisible de Sainte-Sophie, incarne le confort et la convivialité.
Valérie Allaire et Véronique Molini (Re/Max Crystal) sont les courtières responsables de la vente de cette charmante maison de trois chambre, une salle de bain et une salle d’eau à vendre pour 549 900 $.
Bonne visite!

Entrez dans une jolie demeure où l’espace de vie s’enchaîne sans effort : le salon, la salle à manger et la cuisine forment une harmonie ouverte et conviviale.

La cuisine, fonctionnelle et généreuse, dispose d’une presqu’île et d’un grand espace comptoir, parfait pour les repas en famille ou les réceptions improvisées.


La cuisine s’ouvre ensuite sur la salle à manger qui invite à recevoir proches et amis en toute simplicité dans un décor sobre et élégant. La pièce aux dimensions généreuses pourra recevoir confortablement plusieurs convives.



La lumière naturelle inonde le salon grâce à une grande porte-fenêtre qui donne sur la cour arrière, créant une atmosphère chaleureuse et accueillante.


Avant de vous montrer les chambres de cette maison, n’oublions pas de mentionner que la salle de lavage se trouve au rez-de-chaussée pour plus de praticité.
Cette disposition pratique facilite le quotidien et optimise l’organisation familiale.

Sans oublier les détails architecturaux qui ajoutent à l’élégance de cette demeure.

La chambre principale invite à une bonne nuit de sommeil dans une pièce de 15’ 7’’ par 12’ 4’’.


Cette deuxième chambre possède une jolie murale en prime!

Une prochaine famille appréciera avoir trois chambres sur le même palier!

La salle de bains de l’étage présente un concept contemporain élégant, alliant baignoire et douche pour un confort optimal. La propriété possède aussi un rangement important, fort apprécié.


Le sous-sol est entièrement aménagé, comprenant une salle familiale et un bureau idéal pour le télétravail ou une salle de jeux pour une jeune famille.


La pièce servant d’espace de travail peut même recevoir deux bureaux; un atout pratique pour que des enfants puissent faire leurs devoirs dans un lieu propice à la concentration.

La maison repose sur un terrain généreux de plus de 21 000 pieds carrés arboré. Cet espace intime et isolé, parfaitement bordé d’arbres, offre une intimité estivale et un décor hivernal d’une grande pureté.
On retrouve aussi un espace feu accueillant avec des chaises, l’endroit idéal pour les soirées en plein air.
N’oublions pas de mentionner la piscine hors terre, parfaite pour profiter pleinement de l’été en famille ou entre amis.
La propriété possède aussi une remise spacieuse, qui multiplie les possibilités de rangement et d’aménagement.



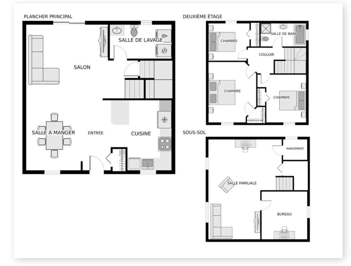
On termine la visite en partageant le plan de cette charmante propriété de 549 900 $. Vous pourrez ainsi vous faire une meilleure idée de la disposition des pièces.
N’hésitez pas à consulter la fiche de vente de cette propriété de Sainte-Sophie pour connaître plus de détails sur celle-ci!

Recevez les dernières nouvelles directement dans votre boîte de réception.