
Nichée sur une rue tranquille.
Nichée dans une rue tranquille, cette maison de caractère se déploie sur 2 niveaux en rez-de-jardin.
Anciennement dotée de 3 chambres, elle a été réaménagée en 2 chambres spacieuses, accompagnées d'une salle de bain entièrement rénovée avec plancher chauffant et d'une buanderie indépendante.
À l'étage, un vaste double salon lumineux s'ouvre sur l'extérieur grâce à une porte-patio triple, tandis qu'une grande salle à manger et une cuisine moderne rénovée, avec plancher chauffant et comptoir en quartz, complètent l'ensemble.
À l'extérieur, profitez d'un terrain intimiste agrémenté d'arbres matures et d'imposants rochers naturels offrant une belle discrétion.
Disponible rapidement!
Étienne Lessard de Re/Max Fortin, Delage est le courtier responsable de la vente de cette superbe propriété de Lévis, ( Les Chutes-de-la-Chaudière-Est ), Saint-Jean-Chrysostome à vendre pour 359 900 $.
Bonne visite!

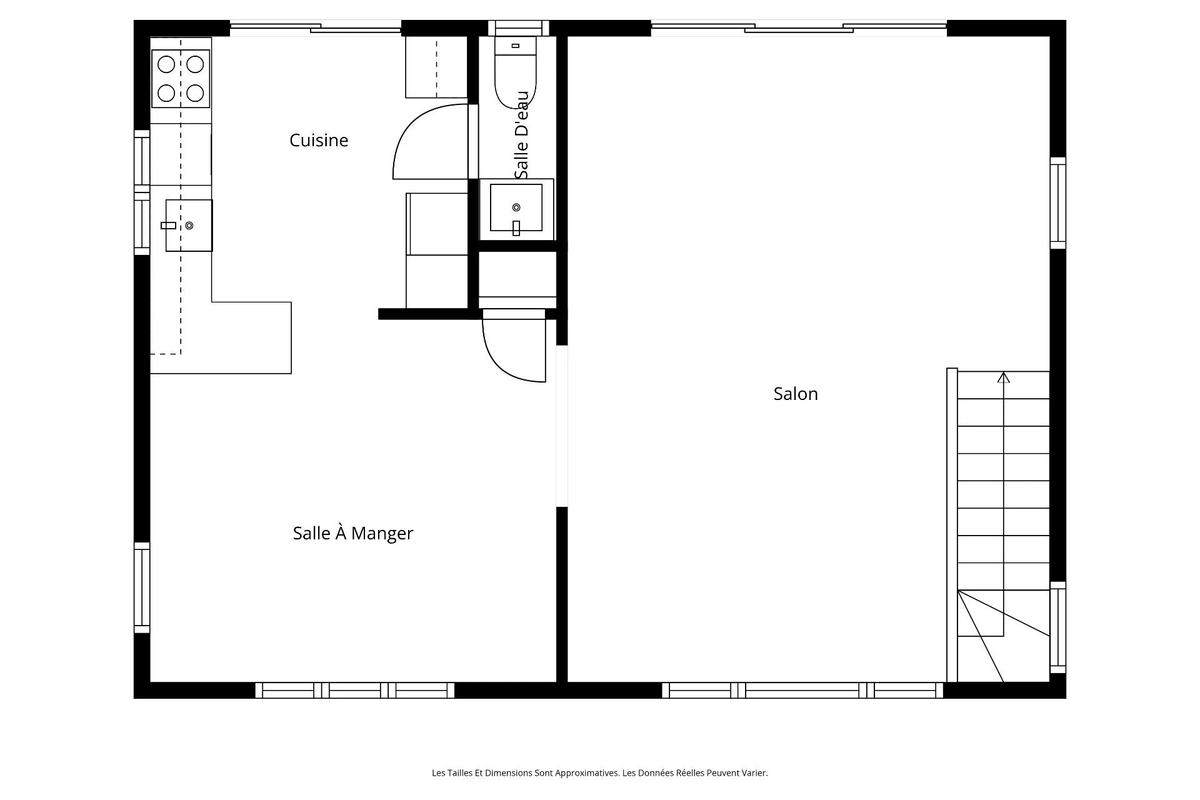
Débutons la visite par l'étage, véritable cœur battant de cette maison, là où la vie s'organise avec élégance et naturel.
Dès les premiers pas, la lumière vous enveloppe, généreuse, chaleureuse, et crée une atmosphère unique où la frontière entre l'intérieur et la nature environnante semble s'effacer.
Les arbres matures que l'on aperçoit à travers les grandes fenêtres confèrent à cet espace une sérénité rare, presque apaisante, comme si la verdure faisait elle-même partie du décor intérieur.


Le salon, vaste et ouvert, s'impose immédiatement par ses proportions généreuses et sa polyvalence.
Que vous souhaitiez y créer un espace lounge confortable, un coin lecture intimiste ou encore un lieu de rassemblement convivial, les possibilités d'aménagement y sont véritablement infinies.
C'est un espace qui s'adapte à votre mode de vie, et non l'inverse.


Tout simplement magnifique!

La salle à manger, coquette et accueillante, s'inscrit harmonieusement dans la continuité du salon.
Elle invite naturellement aux repas chaleureux en famille ou entre amis, dans une ambiance détendue et chaleureuse.


Sa connexion fluide avec la cuisine en fait un espace de vie particulièrement agréable au quotidien.

La cuisine, clairement rénovée avec soin, séduit au premier regard par son concept contemporain bien pensé.
Les matériaux choisis, les lignes épurées et les finitions soignées témoignent d'un souci du détail évident.
Fonctionnelle et esthétique à la fois, elle saura ravir aussi bien les amateurs de cuisine que ceux qui privilégient le style et la modernité. Elle possède un plancher chauffant!



Enfin, une salle d'eau adjacente vient intelligemment compléter cet étage, apportant cette touche de praticité essentielle au bon déroulement du quotidien.


Le plan de l’étage…

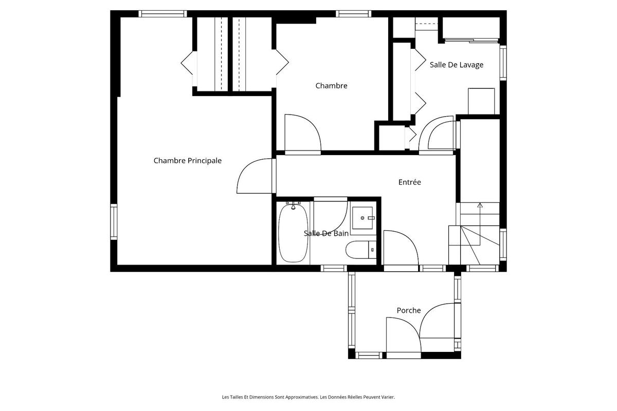
C'est au rez-de-jardin que l'on retrouve le havre de repos de la maison, un niveau pensé pour le calme, la détente et le ressourcement.

La chambre principale vous accueille avec générosité et douceur.
Au-delà de ses dimensions confortables, elle se distingue par un petit espace détente qui en fait bien plus qu'une simple chambre, un véritable refuge personnel où il fait bon décompresser en fin de journée.
Un grand garde-robe vient compléter intelligemment l'ensemble, offrant un rangement à la hauteur de vos besoins.



La deuxième chambre, quant à elle, charme par son décor sobre et apaisant, subtilement teinté de bleu.
Une palette de couleurs soigneusement choisie qui invite naturellement au calme et à un sommeil profond et réparateur.
Elle bénéficie elle aussi d'un grand garde-robe, alliant ainsi esthétique et fonctionnalité.


La salle de bain ne déçoit pas et affiche des finitions de qualité qui témoignent du soin apporté à la rénovation.
Une douche élégante et une vanité tendance composent un espace à la fois moderne et raffiné, où le rituel du matin devient un véritable moment de plaisir.


La salle de lavage, astucieusement séparée, complète ce niveau avec un aménagement pratique et bien pensé qui simplifie considérablement le quotidien.

Le plan du rez-de-jardin…

Et pour couronner le tout, la grande terrasse vous tend les bras.
Que ce soit pour savourer les chauds rayons du soleil, faire une sieste bien méritée ou simplement profiter du silence et de la verdure environnante, cet espace extérieur prolonge magnifiquement ce milieu de vie paisible et ressourçant que vous aurez du mal à quitter.



Cette maison repose sur un terrain de 11 150 pieds carrés.

On vous invite à consulter la fiche de vente ici :
Recevez les dernières nouvelles directement dans votre boîte de réception.
À propos de l'auteur
Rédactrice
Bachelière en musique, Martine enseigne la musique et compose des pièces musicales pendant ses temps libres. Passionnée d’architecture et d’aménagement intérieur, elle suit de très près le marché immobilier du Québec pour vous présenter de magnifiques propriétés à vendre.
Lire la suite