
Une maison de 3 chambres à coucher et 2 salles de bain.
Bienvenue dans ce havre de paix au cœur du Vieux-Charny!
Nichée au calme d'une rue tranquille, cette maison pleine de caractère saura vous séduira dès le premier regard.
Vous découvrirez une jolie demeure de 1955 entretenue avec soin et à l’ambiance chaleureuse!
Etienne Lessard de Re/Max Fortin, Delage est le courtier responsable de la vente de cette beauté de 3 chambres à 2 salles de bain à vendre pour 374 900 $ de Lévis (Les Chutes-de-la-Chaudière-Est), Charny.
Bonne visite!

Entrez dans une belle demeure au cachet d’époque charmant.

Son rez-de-chaussée à aire ouverte, agrémenté d'un poêle à bois au salon, crée une atmosphère chaleureuse et conviviale, parfaite pour les soirées en famille.

Dès votre entrée, le salon vous enveloppe de sa chaleur et de son ambiance apaisante, l'endroit idéal pour décrocher et profiter de précieux moments de détente.
La lumière naturelle, omniprésente, inonde généreusement l'ensemble de l'aire ouverte et crée une atmosphère lumineuse et vivante qui ne manquera pas de vous charmer.


Il n’y a rien de mieux qu’un bon poêle au bois pour apporter une douce chaleur réconfortante en hiver.

Une belle grande air ouverte!

Le salon s'étire naturellement vers une salle à manger conviviale, parfaite pour rassembler famille et amis autour de bons repas.


Celle-ci s'ouvre à son tour sur une cuisine au concept ergonomique, joliment conçue pour allier style et fonctionnalité.
Ses belles armoires soignées, rehaussées d’une moulure ainsi que d'un élégant dosseret, en font un espace aussi esthétique qu'agréable à utiliser au quotidien.


Un aménagement parfait pour la convivialité!

Le rez-de-chaussée se complète d'une chambre de bonnes dimensions, idéale pour accueillir des invités ou s'adapter à vos besoins.


C’est aussi au rez-de-chaussée que l’on retrouve une salle de bain raffinée, dotée d'une douche et d'une superbe vanité.

On y retrouve également une grande salle de lavage pratique, idéale pour le quotidien.

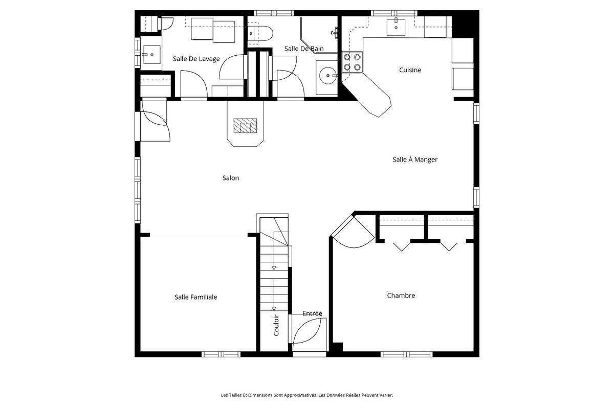
Vous aimez visualiser les pièces dans une maison? Voici le plan du rez-de-chaussée!

Poursuivons la visite avec la découverte de l’étage où l’on est accueilli avec un boudoir qui a été aménagé en petit gym maison et avec un espace bureau.

Fgfgf

C’est aussi à l’étage que vous retrouverez deux belles grandes chambres à coucher.


La dernière chambre à coucher invite à une bonne nuit de sommeil.

On opte pour un décor d’inspiration champêtre à la grande salle de bain de l’étage.
On s'imagine volontiers glisser dans l'eau chaude et bienfaisante de la magnifique baignoire sur pattes, laissant les tensions de la journée s'évaporer doucement, dans un silence apaisant et un confort absolu.



Voici le plan de l’étage que vous venez de découvrir. On mentionne dans la fiche de vente que le sous-sol n’est pas aménagé mais doté d'une hauteur généreuse de plus de 6 pieds et d'une entrée indépendante. Il représente un potentiel extraordinaire, à vous de le transformer selon vos envies!

Côté extérieur, détendez-vous comme vous le méritez dans votre spa privé sous son gazebo permanent, tandis que la maison et le terrain, entretenus avec le plus grand soin, vous garantissent un cadre impeccable dès votre arrivée.



Poursuivez votre visite en consultant la fiche de vente!
Recevez les dernières nouvelles directement dans votre boîte de réception.