
À proximité de tous les services!
On vous propose la visite d’une charmante maison de ville de coin, adossée à un boisé, dans le Quartier des Comédiens à Cowansville.
Construite par le Groupe Schinck, cette propriété de 397 900 $ + TPS/TVQ offre un cadre à la fois calme et chaleureux.
Vous découvrez un intérieur au goût du jour, où il ne manque que vos meubles pour le personnaliser à votre image.
Sobriété et raffinement s’unissent dans un espace qui invite à la sérénité et à la personnalisation, offrant trois chambres, une salle de bain et une salle d’eau, le tout enveloppé d’un charme simple et élégant avec des finitions de grande qualité.
L’emplacement est privilégié : un secteur tranquille, tout en restant proche de tous les services, commerces, écoles et transports, ce qui en fait un nid parfait pour profiter du meilleur des deux mondes : le calme du boisé et l’accessibilité urbaine.
Yanick Beauregard de Re/Max Action est le courtier responsable de la vente de cette propriété de Cowansville.
Bonne visite.

Dès les premiers pas à l’intérieur, cette maison affiche ses couleurs avec des finitions neutres et contemporaines.
Un garde-robe, prêt à accueillir manteaux, bottes et souliers de la famille, accueille les visiteurs à l’entrée.

Dès l’entrée, le rez-de-chaussée chaleureux propose un plancher chauffant pour une sensation agréable et continue.
On démarre la visite par le cœur de la maison : une superbe cuisine qui déclenche aussitôt des coups de cœur, mêlant élégance et fonctionnalité pour inspirer les repas et les moments de vie.

Une belle grande aire ouverte où l’on se surprend déjà à imaginer la disposition de nos meubles!

On s’imagine une grande table pour la famille, des moments mémorables à partager autour de repas copieux et de fêtes entre amis et proches.
Un salon confortable invite à des moments de détente toujours appréciés.

L’espace de vie se révèle chaleureux et instantanément adaptable, prêt à accueillir votre touche personnelle dès les premiers jours.
La propriété possède une thermopompe pour votre confort.

On indique dans la fiche de vente, que la salle de bain principale combine élégance et praticité avec une douche en céramique et une porte vitrée. La propriété possède aussi une salle d’eau.


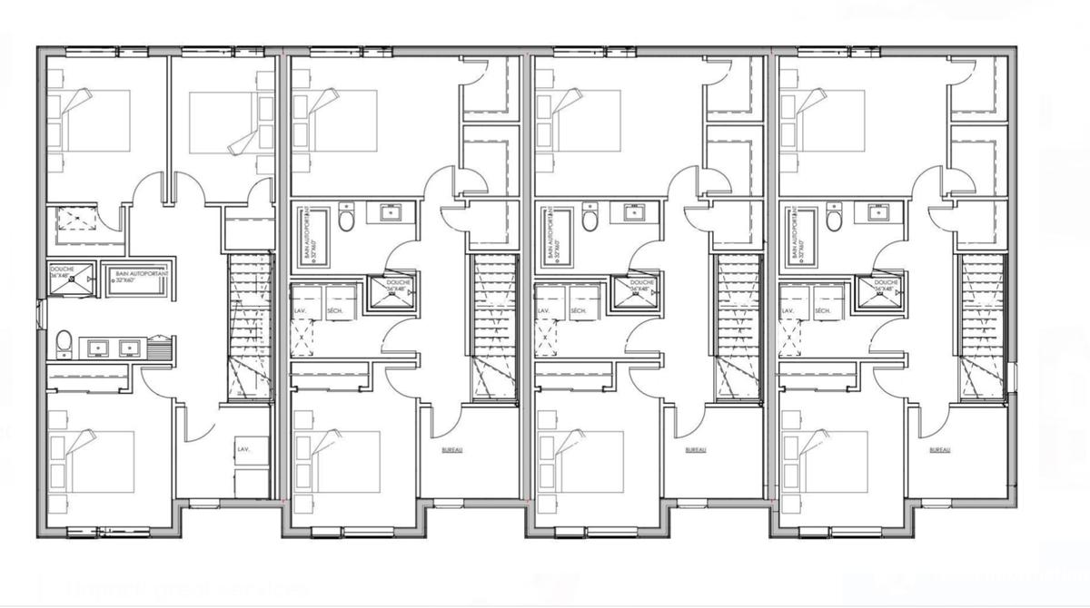
À l’étage, trois chambres bien dimensionnées offrent des espaces confortables pour une famille, un bureau à domicile ou des chambres d’amis.

Les chambres, paisibles et généreuses, invitent au repos ou à l’aménagement d’un bureau à domicile, tandis que les matériaux et les détails témoignent d’un souci du détail.



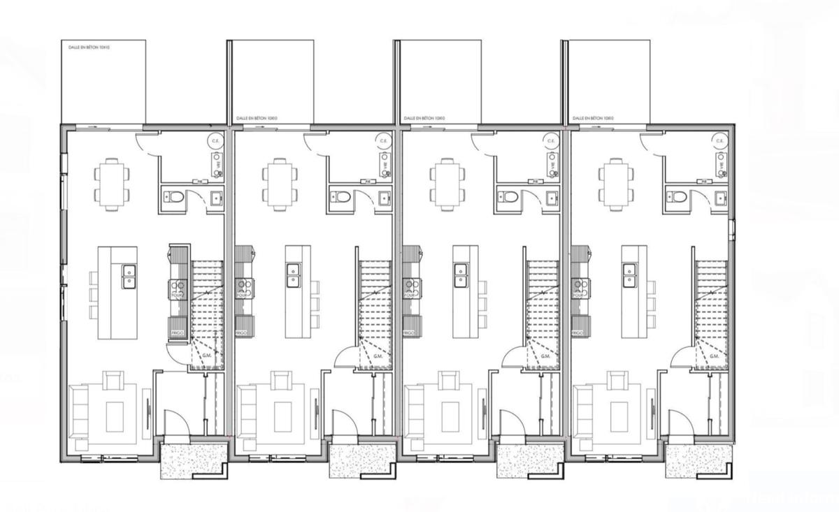
Le plan de cette propriété nous aide à mieux imaginer la disposition des pièces. On retrouve une salle d’eau au rez-de-chaussée et la salle de bain principale, ainsi que la salle de lavage se trouvent à l’étage des chambres.


Les photos sont à titre indicatif et peuvent présenter des variantes par rapport au produit final.
Le prix affiché est tout inclus : TPS,TVQ et remboursements éventuels y sont intégrés. Aucun frais de copropriété ne s’applique; le montant demandé couvre l’ensemble des services et obligations associées.

Poursuivez la visite en consultant la fiche de vente ici :
Recevez les dernières nouvelles directement dans votre boîte de réception.
À propos de l'auteur
Rédactrice
Bachelière en musique, Martine enseigne la musique et compose des pièces musicales pendant ses temps libres. Passionnée d’architecture et d’aménagement intérieur, elle suit de très près le marché immobilier du Québec pour vous présenter de magnifiques propriétés à vendre.
Lire la suite