
Liberté totale et intimité absolue.
Bienvenue au sommet du mont Cervin, là où la montagne devient maison.
Perchée sur un terrain généreux de 32 305 pc, sans voisin à l'arrière, cette propriété d'exception vous offre une liberté totale et une intimité absolue.
Ici, la nature n'est pas un décor, elle fait partie de votre quotidien.
Dès le matin, enfilez votre casque et partez directement sur les sentiers du Saisonniers grâce à un accès bike-in/bike-out unique.
Profitez d’un superbe plafond cathédrale en lattes de bois qui ajoute prestance au salon, ainsi que des planchers chauffants, présents sur les 3 niveaux.
Cette propriété de Lac-Beauport de 765 000 $ vous accueille comme une étreinte.
Étienne Lessard de Re/Max Fortin, Delage est le courtier responsable de la vente de cette charmante demeure de 4 chambres, 2 salles de bain et une salle d’eau.
Bonne visite!

Entrez dans une magnifique construction de 2005.


Lumineuse, généreuse et intelligemment conçue, la cuisine séduit dès le premier regard.
Ses nombreuses armoires offrent un rangement à la hauteur de vos ambitions culinaires, tandis que ses petits extras font toute la différence, dont une particularité rare et bienvenue : deux éviers à deux postes distincts.
Préparer un festin en famille devient alors un vrai plaisir, sans bousculade, sans compromis, avec tout l'espace qu'il faut pour que chacun trouve sa place.



La pièce s'ouvre en douceur sur une salle à manger lumineuse qui invite à s'attarder.
Ici, les repas se prolongent, les conversations s'étirent, portées par une vue apaisante sur la nature environnante. Le paysage devient presque un convive de plus… silencieux, mais inoubliable.


N’est-ce pas un superbe coup d’œil?

On lève les yeux, et on reste bouche bée.
Le plafond cathédrale en lattes de bois et les poutres apparentes créent une verticalité saisissante qui agrandit l'espace autant qu'elle le sublime.
Lumineux, aéré, chaleureux, ce salon est de ceux où l'on s'installe sans raison et où l'on reste sans excuse.



On se surprend à admirer ces incroyables poutres exposées!

Sur ce même niveau, une chambre sereine et une salle d'eau pratique complètent l'étage avec intelligence.
Que ce soit pour les occupants de passage ou pour celui ou celle qui y fait sa nuit, tout est là, à portée de main, discret, fonctionnel, parfaitement intégré.


Un coup d’œil jeté en direction de la salle d’eau.

Voici le plan du rez-de-chaussée de cette propriété.

Montez quelques marches, et laissez le reste du monde en bas.
La chambre principale vous y attend, toile blanche prête à recevoir votre signature, votre style, vos meubles; un espace généreux qui n'attend que vous pour prendre vie et devenir le cocon dont vous rêvez.
Attenante, la salle de bain conjugue le meilleur des deux mondes : une douche pour les matins pressés, une baignoire pour les soirs où l'on prend enfin le temps de souffler. Parce que le luxe, c'est aussi ça — avoir le choix.


Attenante, la salle de bain conjugue le meilleur des deux mondes : une douche pour les matins pressés, une baignoire pour les soirs où l'on prend enfin le temps de souffler. Parce que le luxe, c'est aussi ça, avoir le choix.


Et à deux pas, une deuxième chambre de belles dimensions complète cet étage avec générosité, idéale pour accueillir famille ou invités dans un confort qui ne fait aucun compromis.
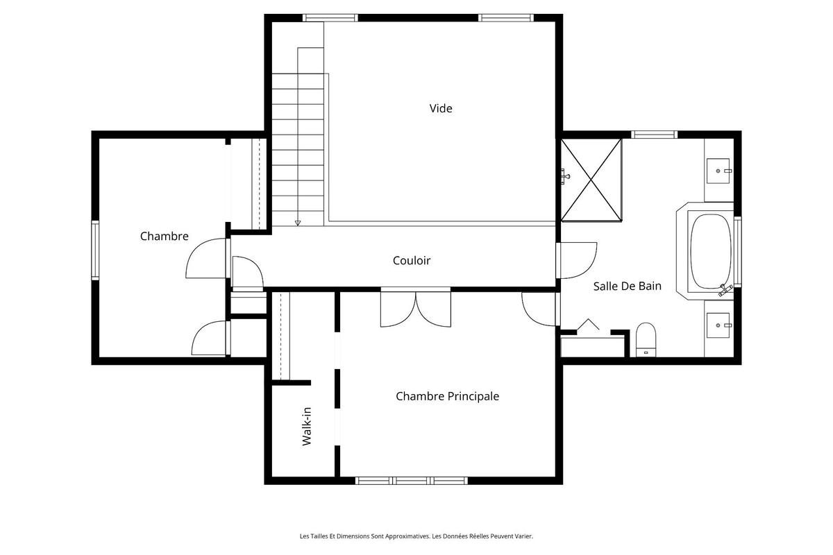
À la mezzanine, chaque mètre carré est pensé pour que vous vous sentiez exactement là où vous devez être, en hauteur, en paix, chez vous.

Sans oublier le superbe plafond des pièces de cet étage!

Le plan de la mezzanine nous aide à mieux imaginer la disposition des pièces.

On descend, et la surprise est totale.
Loin de l'image sombre et austère du sous-sol traditionnel, le rez-de-jardin de cette demeure déborde de lumière et de vie.
La salle familiale y règne en maître, lumineuse, accueillante, parfaite pour les soirées de jeux, les films en famille ou simplement pour que chacun ait son espace à soi.



Une quatrième chambre vient compléter l'ensemble avec générosité.


Comment trouvez-vous cette grande salle de lavage?

Une deuxième salle de bain au goût du jour assure confort et modernité à cet étage.

La salle mécanique…

Et parce que le rangement fait toute la différence au quotidien, un espace dédié a été soigneusement prévu, pour garder la maison aussi belle que le premier jour. On peut découvrir ici le coin atelier toujours pratique pour bricoler!

Le plan du rez-de-chaussée.

Et cette magnifique vue sur les montagnes au loin!

Cette superbe propriété vous offre un milieu de vie paisible, un milieu parfait pour les amoureux de plein air. Vous vous sentirez en vacances ici!


N’hésitez pas à consulter la fiche de vente de cette propriété de 765 000 $ de Lac-Beauport.
Recevez les dernières nouvelles directement dans votre boîte de réception.
À propos de l'auteur
Rédactrice
Bachelière en musique, Martine enseigne la musique et compose des pièces musicales pendant ses temps libres. Passionnée d’architecture et d’aménagement intérieur, elle suit de très près le marché immobilier du Québec pour vous présenter de magnifiques propriétés à vendre.
Lire la suite